欢迎来到常州奥创干燥设备有限公司!
15261182988
当前位置:首页 > 产品中心 > 制粒设备
产品中心 / Product Center
  • 喷雾干燥制粒机
  • 喷雾干燥制粒机
  • 喷雾干燥制粒机

PGL系列喷雾干燥制粒机

所属分类:制粒设备

产品简介:本机组工作过程为料液通过隔膜泵高压输入,喷出雾状液滴,然后同热空气并流下降,大部分粉粒由塔底排料口收集,废气及其微小粉末经旋风分离器分离,废气由抽风机排出,粉末由设在旋风分离器下端的授粉筒收集,风机出口还可装备二级除尘装置,回收率在96-98%以上。

咨询热线:

15261182988

在线反馈

产品概述

  本机组是一种可以同时完成干燥和造粒的装置。按工艺要求可以调节料液泵的压力、流量、喷孔的大小,得到所需的按一定大小比例的球形颗粒。
  本机组工作过程为料液通过隔膜泵高压输入,喷出雾状液滴,然后同热空气并流下降,大部分粉粒由塔底排料口收集,废气及其微小粉末经旋风分离器分离,废气由抽风机排出,粉末由设在旋风分离器下端的授粉筒收集,风机出口还可装备二级除尘装置,回收率在96-98%以上。
  本机组与物料接触部分的塔体、管道、分离器的材料,均采用SUS304制作。在塔体内部与外壳之间有足够的保湿层,填充材料为超细玻璃棉,塔体设有观察门、视镜、光源及控制仪表,由电器控制操作台控制和显示。

产品应用

制药工业:片剂、冲剂、胶囊剂颗粒;低糖、无糖的中成药颗粒; 食品:可可、咖啡、奶粉、颗粒果汁、调味品等; 其它行业:农药、饲料、化肥、颜料、染料等。

产品特点

1、干燥速度快,料液经雾化后表面积大大增加,在热风气流中,瞬间就可蒸发95%-98%的水份,完成干燥的时间仅需要十几秒到数十秒种,特别适用于热敏性物料的干燥。
2、所有产品为球状颗粒,粒度均匀,流动性好,溶解性好,产品纯度高,质量好。
3、使用范围广,根据物料的特性,可以用热风干燥, 也可以用冷风造粒,对物料的适应性强。
4、操作简单稳定,控制方便,容易实现自动化作业。

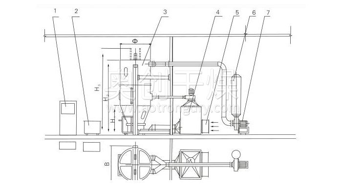
结构示意图

喷雾干燥制粒机结构示意图

1、控制柜 2、输液小车 3、主机 4、换热柜 5、亚高效过滤器 6、消声器 7、引风机

技术参数

项 目 单位/机型 PGL-3B PGL-5B PGL-10B PGL-20B PGL-30B PGL-80B PGL-120B
流浸膏 min kg/h 2 4 5 10 20 60 100
max kg/h 4 6 15 30 40 100 140
沸腾能力 min kg/批 2 6 10 30 60 100 150
max kg/批 6 15 30 80 160 250 450
液体比重 kg/L ≤1.30
原料容器量 L 26 50 220 420 620 980 1600
容器直径 mm 400 550 770 1000 1200 1400 1600
引风机功率 kw 3.0 5.5 7.5 11 15 18.5 30
辅风机功率 kw 0.35 0.75 0.75 1.20 2.20 2.20 4
蒸汽 耗量 kg/h 40 70 99 210 300 366 465
压力 Mpa 0.40-0.60
电热型功率 kw 9 15 21 25.5 51.5 60 75
压缩空气 耗量 m3/min 0.5 0.8 0.8 0.9 1.1 1.3 1.8
压力 Mpa 0.40-0.60
作业温度 °C 室温-160°C自动调节
产品水份 % ≥0.2
物料收得率 % ≥99
设备噪音 dB <77
主机尺寸 Φ mm 400 550 770 1000 1200 1400 1600
H1 mm 940 1050 1070 1220 1570 1590 1690
H2 mm 1900 2360 2680 3150 3630 4120 5050
H3 mm 2050 2590 3020 3600 4180 4770 5800
B mm 740 890 1110 1420 1620 1820 2100

选型例:要求每批次处理流浸膏量 I=120kg(含固量为30%)、种子量II=60kg,可由I、II得出理论成品量 M=mI+mII=120kgx30%+60kg=96kg,工作时间T=120kg/30kg/h=4h,技术参数栏中可查出沸腾量为标准载荷范围,故以每班完成两个批次,选用PGL-30型较为适宜。

应用客户
视频集锦
    暂无视频集锦...
动画演示
相关工程
暂无记录...

在线反馈

相关文章
  • 2023-10-12 10:44:40

    零件磨损不仅会影响闪蒸干燥机的正常工作,还会降低使用寿命。为了保证正常工作,有效的方法是减少各部件的磨损。在此之前,首先要了解零件磨损的原因。原因不同,预防措施也不同。摩擦引起的磨损可以通过在摩擦位置添加润滑油来去除杂质来解决。当电机出现问题时,可以通…

  • 2023-10-10 10:47:00

    干燥机是一种用于去除物品内部水分的设备。它的主要功能是通过加热和循环空气来降低物品的湿度,从而提高产品的品质和保存时间。干燥机被广泛应用于电子、食品、制药、化工、建筑材料、纺织印染等众多领域,因为它有很多显著的特点和使用效果。首先,干燥机有高效的干燥效…

  • 2023-09-28 10:48:43

    喷雾干燥机其在使用完毕后,是需要进行一些清洗和检查工作的,以便能够使其再次正常使用,并延长其使用寿命。所以下面,我们就来聊聊这一方面的一些具体内容。当喷雾干燥机使用好以后,是先关掉加热装置,然后再是关闭料泵。当其进口温度降至100℃以下后,再停止风机,然…

  • 2023-09-07 10:49:31

    1,检查软管是否有堵塞或者弯曲的情况,因堵塞或弯曲都会影响气流流出机器,导致空气循环不好,阻碍干燥机的正常升温,进而影响干燥效果。2,如果确认软管没有堵塞或弯曲的问题,那么就需要检查是否是物料超载了,物料一旦超载,也会造成机器堵塞,使得空气无法实现自由循…

相关产品
常州奥创干燥设备有限公司

服务热线:

15261182988

关于我们
公司简介
产品中心
干燥设备 制粒设备 混合设备 粉碎设备 筛分设备 热源设备 除尘设备 更多...
新闻中心
公司新闻 行业新闻 技术支持

扫一扫 微信咨询

contact us
Copyright 2023 常州奥创干燥设备有限公司 苏ICP备2023039255号 版权声明 技术支持:江苏东网科技
Top